Spatiu Comercial CALEA FLOREASCA 290 MP de inchiriat — Floreasca, Bucuresti

Bucuresti,  Floreasca

ID:595

6.960€ / luna+TVA

Descriere spatiu comercial

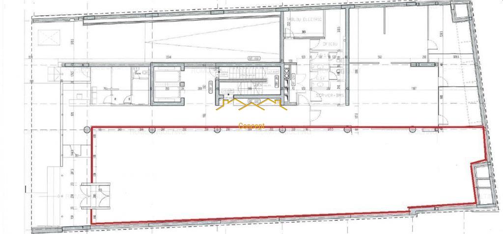
Oferim spre inchiriere spatiu comercial modern in zona Floreasca, in suprafata de 290 mp, situat la parterul unei cladiri de clasa superioara, fiind amplasat pe Calea Floreasca , una dintre cele mai importante si intens tranzitate artere, aflata foarte aproape de zona ultra-centrala, la o distanta de doar 1.6 km de Piata Victoriei, principalul centru de afaceri din centrul Bucurestiului. 
Beneficiaza de acces facil la mijloacele de transport in comun, fiind situat la cateva minute de stațiile de STB si la 10 minute de statia de metrou Stefan cel Mare.

Eficienta energetica a spatiului este clasa A, consumul total specific de energie primara este de 54,82 iar indicele de emisii echivalent CO_2 este de 17,19.

Spatiul poate fi mobilat si compartimentat flexibil in functie de necesitati si cerinte. Este pretabil pentru restaurant, hipermarket, showroom.

Facilitati:
 Receptie la parterul cladirii;
 Instalatii de conditionare a aerului pentru toate spatiile de la parter pana la etajul 5. Pentru acest tip de ventilatii au fost alesi ventiloconvectori McQuay, firma care reprezinta un varf de calitate in domeniu;
 Instalatii de ventilatie cu aport de aer proaspat pentru birouri. Debitul necesar pentru aerul proaspat este obtinut prin prevederea unei centrale de ventilatie tip Wesper;
 Sistem building management system, ce are misiunea de monitorizare centralizata a cladirii, care duce la optimizarea costurilor de consum si de intretinere.

Pret inchiriere: 24 euro + TVA/mp

Open book (in functie de necesarul activitatii)

Utilitati: Apa, Canalizare, Curent

Separat de cei 290 mp ar mai fi un spatiu de 66 mp -la 13 euro +Tva /mp situat tot la parter ce poate fi folosit .
Pret service  charge :4,5+Tva

Caracteristici spatiu comercial

  • Numar Camere: 1
  • Zona: Floreasca
  • Suprafata utila: 290 mp
  • Reper: CALEA FLOREASCA
  • Structura:

Caracteristici generale spatiu comercial

Harta

Oferte similare

inchiriere

Floreasca, Bucuresti

Oferim spre inchiriere spatiu comercial modern in zona Floreasca, in s

icons 6
icons 2
icons 100
1.700EUR
Ai nevoie de ajutor? Ne puteti contacta pe